Kuća 83 m2- obiteljska kuća 3 sobe
kompaktna obiteljska kuća 83 m2 s tri spavaće sobe
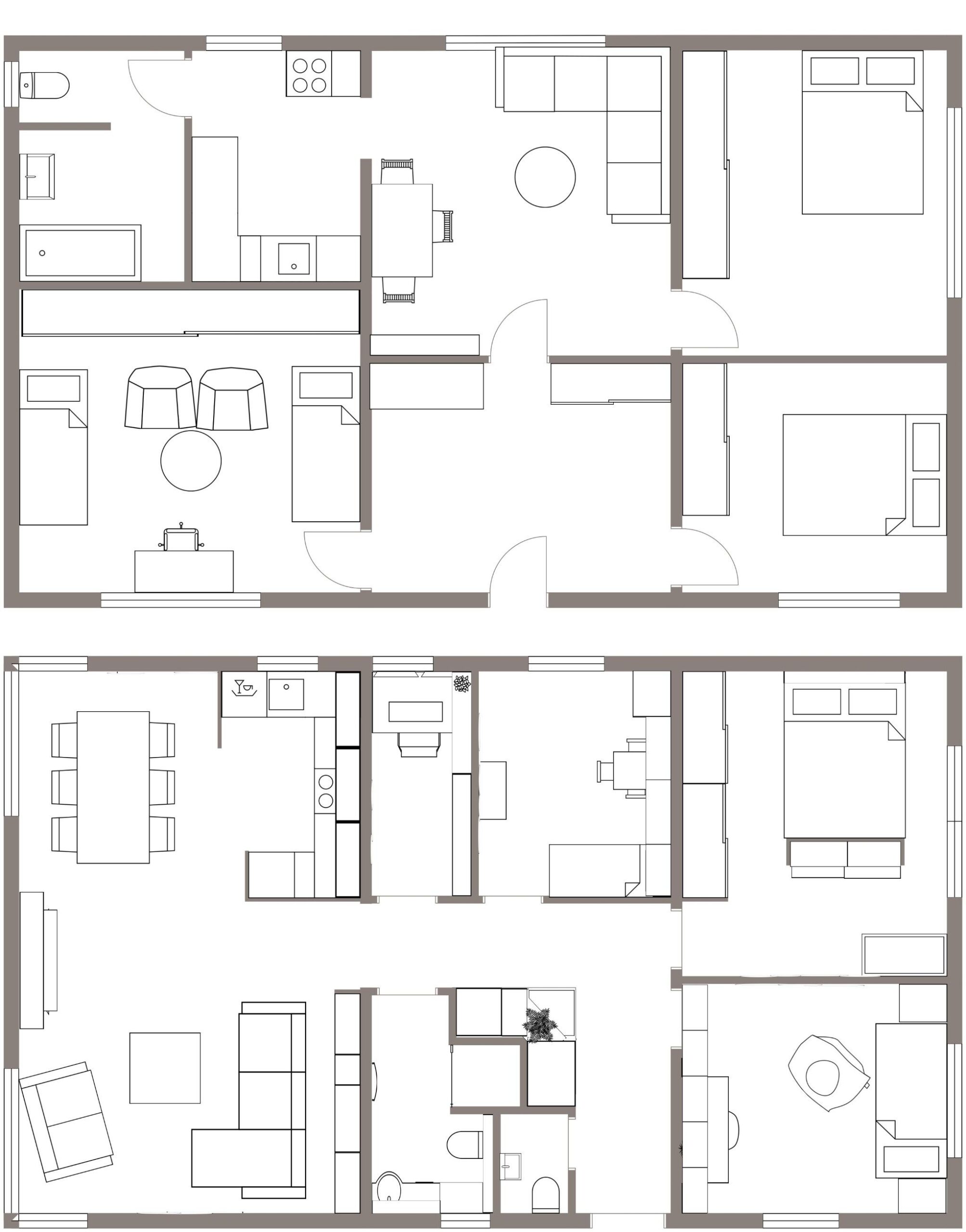
Originalni tlocrt mi je baš čudan, al ajd, nisu ni moji bolji. Taj tlocrt eventualno mogu objasniti time što je stara kuća, a kako je nekad i 6 generacija živjelo u istoj kući, valjda su i prostorije bile oveće da jedna obitelj stane u nju, a zajedničke prostorije koriste svi- zapravo, pametno. Nisi prije mogao samo tako napravit kuću/ kupit stan. Nemoš ni danas, al prije 70 godina to je bilo stvarno nemoguće.
Uglavnom, malo samo pomaknula ulazna vrata (ne znam jel se to može, ako da- super :D). Nije idealno toliko puno koraka do dnevnog dijela, al eto, u ovom tlocrtu je tako čisto jer me zanimalo koliko se dobije. U drugoj varijanti tlocrta, ulazi se bliže boravku.
Dnevni prostor je lijep i otvoren, kuhinja je malo odvojena. Tlocrt ima čak 3 spavaće sobe i malu radnu sobicu koja može služiti i kao ostava- u tom slučaju bih malo drukčije presložila kuhinju tako da se u ostavu ulazi iz kuhinje.
TIPS&TRICKS
tamna boja djeluje elegantno, ako imaš velike prozore i općenito dobro osvjetljen prostor, a voliš tamne boje- samo naprijed
nemoj misliti da se i uski prostori ne mogu iskoristiti- mogu itekako; a ako imaš opciju, radije stavi ulaz s dulje strane, a ne s uske

Leave a Reply