
Kuca 114 m2- spa prostorija
OBITELJSKA KUĆA SKROMNE KVADRATURE U odnosu na SADRŽAJ
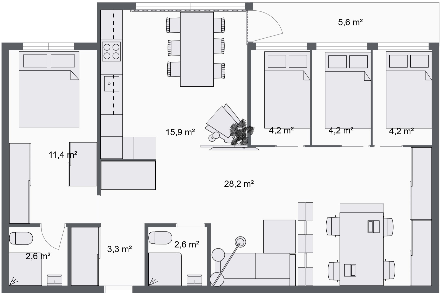
TLOCRT
Skromna kućica s puno sadržaja i uređenom okućnicom na komadu zemlje veličine 400tinjak m2. Naravno, ne postoji fizički, izmišljeno skroz :D. Kuća ima 4 spavaće sobe, 2 kupatila, sobu za opuštanje sa saunom, vešeraj i prostran dnevni prostor te kuhinju s ostavom. Nije skroz open space, kuhinja je uvučena. Vani ima natkriven dio gdje su vanjski boravak i veliki stol te roštilj i šank.
render
Boravak je skromnije veličine, ima trosjed i dvosjed, a vjerujem da bi i fotelja stala. Odmah iza biblioteke je mali radni kutak u sklopu predsoblja. Prostor je dosta osvjetljen pa slobodno koristi tamnije boje ako ti se sviđaju.
Kuhinja sasvim pristojne veličine, zidni ormarići su od zida do zida, a naprijed je veliki prozor koji gleda prema ulazu u dvorište (špijunka).
Uvučena kuhinja zgodnija je i po mnogočemu praktičnija od kuhinje otvorene prema dnevnom prostoru. Ali, svatko ima svoje preference. Također, U-oblik je praktičan jer je prostor maksimalno iskorišten i gdje god se okreneš, imaš radnu plohu.
Pitanje je dal bi se moglo na dvije (skoro cijele strane) omeđiti betonskim zidovima koji bi bili umjesto ograde. Ovisi o lokaciji, prvom susjedu itd. Ti betonski zidovi služe za među, naravno, a i da ušuškaju dio dvorišta i time ga zaštite od vremenskih uvjeta da možeš lijepo provoditi vrijeme vani- a vani je uređeno gotovo kao unutra- imaš skoro potpun dnevni prostor.
Služe kao nosači konstrukcije, a i ponegdje bih stavila i stubove umjesto punih zidova kao npr. iza garniture za sjedenje, da dopre malo više svjetlosti i da razbije zatvorenost zbog puno metara zida.
Vanjski dio i stambeni dio možda mogu biti povezani pergolom. Zamisli, kad lijepo pročarano svjetlo pada na opločnike. Ajme miline.
Isto ima stubove tako da djelomično sakrije pogled od tog lima.
.. lako moguće.
Može biti i ormarić/ polica/ dodatni radni kutak, al mislim da je bolje da je ovako nešto, ako se hoćeš maknuti i čitati itd- kao neka mini zona.
Ideja mi je bila koncentrirati čim vise tekstila na jedno mjesto radi smanjenja nepotrebnih koraka po kući za raznošenje stvari koje je čije- zato praonica ima čim veći ormar. Također, ormar se nalazi i u predsoblju, nasuprot vešeraja.
Nadalje, kupatila su blizu da ne moraš preko cijele kuce nositi prljave stvari. Za ovo drugo kupatilo kod praonice, možda se može pametno napraviti neka rupa u zidu da odmah ubaciš prljav veš u vešeraj haha.
Kad je sunčano, sušiš veš vani, logično. I jos je iza kuće, zaklonjen, da niko ne mora znati da imaš medvjediće na boksericama.
Minijaturna je, ali zamisli, samo zamisli da imaš prostorijicu za opuštanje u koju se možeš zaključati i reći drugima: doviđorno na sat-dva. Malo se pacaš u sauni (popularno se zove detoksikacija, ali bez zezancije, sauniranje je super za zdravlje, samo umjereno), pa se onda lijepo uz čašu vina brbućkaš u kadi, a onda fino izađeš u bademantilu van na svoju privatnu zaklonjenu terasu i prodišeš punim plućima na friškom zraku. Ajde reci!
Kao što rekoh, pacanje u sauni je blagotvorno, ali malo tko si može priuštiti saunu kod kuće. Najprije je potrebno istražiti i vidjeti koje i kakve vrste se nude, po čemu se razlikuju i kakvih ima veličina.
Nema velik ormar jer računam na vešeraj, al ajde nek je ovaj makar kakav. Osim toga, imaš izlaz van na privatnu terasu kad ti usfali zraka ili hoćeš zapalit :D.
Od 4 spavaće sobe, 3 su dječje. Doduše, ovaj ih put nisam sređivala, samo sam ih napravila svaku drukčiju čisto da vidim radi razmještaja kako je prostor najiskoristiviji.
TIPS&TRICKS
- pronađi kutak za radni kutak- ako ti je potrebna doslovno mala ploha za laptop, pokušaj naći ćoškić ili nišu u zidu koja ti može poslužiti za radni kutak.
- napravi oazu i privatnu terasu- ako imaš uvjeta za to, odnosno, ako imaš mjesta okolo kuće, te ako imaš balkon vrata umjesto prozora, napravi svoju malu privatnu zelenu oazu sakrivenu od pogleda.











































































































